Crèche municipale à Sceaux
Sceaux (92) _ Chantier

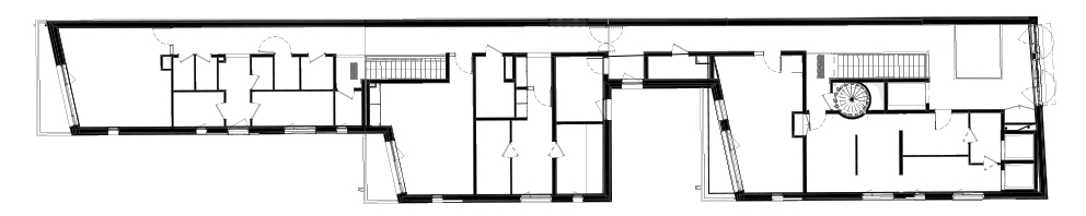
Sur une parcelle tout en longueur (61x10m), le nouveau multi-accueil de la petite enfance s’insère entre cimetière communal et logement collectif en R+7. La volumétrie basse du bâtiment, le rythme étiré de sa façade en pierre massive, la limite nette formée par le mur d’enceinte et l’entrée côté rue traitée comme une faille chaleureuse participe à son intégration urbaine.

L’exiguïté des lieux exige une organisation hyper-rationnelle : les enfants au RdC, les espaces adultes au R+1 et en sous-sol les locaux techniques. Cette même rigueur se retrouve dans l’enchaînement des séquences à mesure que l’on chemine de la rue vers le fond de la parcelle : entrée en double hauteur, espace bébés, puis les moyens, les grands et l’espace extérieur.

Les choix constructifs font la part belle aux matériaux naturels, bio et géosourcés, peu transformés et sains : structure bois, mur à ossature bois isolé en petite botte de paille et enduit intérieur en terre crue, pierre massive autoportante en façade. Cette paroi (pierre/ paille/terre) assure une isolation thermique et acoustique optimale, garantit une inertie et un déphasage conséquents bienvenus pour limiter les surchauffes estivales et maintenir un confort thermique.

Les fenêtres s’adaptent aux enfants avec des cadrages bas et des assises intérieures ou extérieures. Une pompe à chaleur et des panneaux photovoltaïques en toiture assurent la production d’énergie en hiver comme en été.

MAÎTRISE D'OUVRAGE
Ville de Sceaux (92)
PHASE
En cours
COÛT
3,3 M€
SURFACE TOTALE
980 m² SDP
PROGRAMME
Multi-accueil de la petite enfance, crèche de 40 berceaux
MAÎTRISE D'OEUVRE
Dumont Legrand architectes (mandataire)
Atelier Jours (paysage)
Barthès Be Bois (structure)
SWITCH (CVC, thermique, environnement)
TCA (économie)
AVA (acoustique)
Gesbert (électricité)
Alliance (amiante)

Chef.fe.s de projet : Baptiste Brenguier, Fleur Alliet, Nathan Julien, Gaspard Brousse

Crédit perspectives : Lotoarchilab