Groupe scolaire en MGP à Saint-Denis
Saint-Denis (93) _ Chantier

Le groupe scolaire a vocation à accompagner la métamorphose du quartier, amorcé avec la construction du village olympique. Autrefois industriel et artisanal, celui-ci se destine à un avenir plus résidentiel tout en incluant des activités tertiaires. Situé en bordure du parc Ampère, et partiellement intégré au parc, le nouveau groupe scolaire accompagne, par son implantation et par son architecture, un effort de réparation d’un quartier aujourd’hui très hétéroclite.

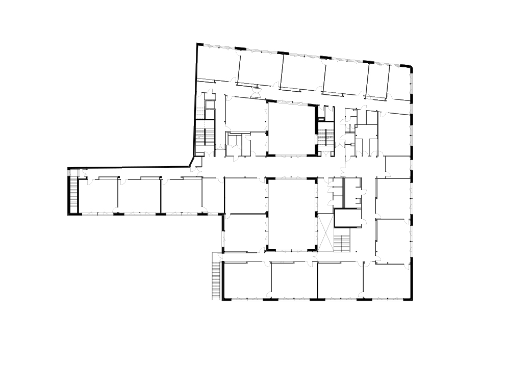
Le bâtiment développe deux faces à l’écriture sobre et rigoureuse. Côté rue, une façade classique (soubassement/corps principal/couronnement) revendique le caractère solennel de l’école républicaine. Un parvis en longueur constitué d’une séquence rue/porche/courette/hall fait ressentir l’épaisseur du bâtiment comme un hommage à l’importance de sa mission éducative. Le parvis ouvert sur la rue illustre cette fonction cardinale de l’école : accueillir les enfants dans l’institution, les éduquer à leur rôle de futurs citoyens. Côté parc, l’école montre un tout autre visage avec ses cours récréatives et ses avant-toit charpentés. Le bâtiment assume ici son rôle d’articulation urbaine avec le parc Ampère. Un épannelage des volumes oriente le bâtiment vers le parc. Son architecture, ici plus organique, entre en dialogue avec la douceur et les nuances changeantes d’un espace naturel. Il évoque l’école comme le lieu du vivre ensemble et du lien au vivant.

La volumétrie se veut compacte pour limiter les surfaces déperditives et réduire le cheminement des fluides. Les baies sont de dimensions raisonnables avec des dispositifs de protection passive. La structure poteau-poutre bois assure une flexibilité d’usage, les planchers connectés bois-béton réduisent le bilan carbone de l’ouvrage tout en apportant de l’inertie thermique. La façade à ossature bois (FOB) est rempli en bottes de paille, un gobetis/enduit à la chaux projeté à même la paille assure l’étanchéité à l’eau.

MAÎTRISE D'OUVRAGE
Ville de Saint-Denis / Solidéo
PHASE
En cours
COÛT
18 M€
SURFACE TOTALE
3 200 m² + 3 400 m² de surfaces extérieures
PROGRAMME
Construction d’un groupe scolaire de 18 classes, d’une restauration scolaire double, d’un centre de loisir et d’un terrain d’éducation sportive couvert en Marché Global de Performance (MGP)
MAÎTRISE D'OEUVRE
Dumont Legrand Architectes
Maître Cube (entreprise bois mandataire)
AIA Ingénierie (BET structure)
Zefco (BET environnement)
Atelier Jours (paysagiste)
Acoustique Agna (acousticien)
Behal (cuisiniste)

Chefs de projet : Antoine Chaignon, Baptiste Brenguier, Luc Vonach

Crédits perspectives : Lotoarchilab